Čtyřhranné komponenty.

Čtyřhranné vzduchotechnické potrubí slouží stejně jako kruhové potrubí k dopravě vzduchu. Výhodou čtyřhranného potrubí je, že se lépe přizpůsobuje rozměrům stavby a snáze se vyrábějí tvarové kusy. Čtyřhranné potrubí vyrábíme z tabulového nebo svitkového ocelového pozinkovaného plechu DX51D MAC s vrstvou zinku 275 g/m2 s potlačovaným květem.

←Zpět

Přechod asymetrický čtyřhranný

Popis

Přechod asymetrický čtyřhranný se používá jako tvarový prvek vzduchotechnického rozvodu. Standardně se vyrábí v níže uvedeném provedením, nadstandardně je možné přechod asymetrický čtyřhranný vyrobit podle konkrétního požadavku.

Standardní provedení

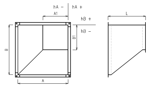
  • Rozměry A x B a A1 x B1: A, B, A1, B1 ≤ 1600mm*
  • Délka L: L ≤ 1500mm*
  • Odskok vodorovný hA: hA +/- ≤ ½ A*
  • Odskok svislý hB: hB +/- ≤ ½ B*
  • Příruby: P20, A, B ≥ 1001mm P30
  • Materiál: ocelový pozinkovaný plech
  • Skupina: I
  • Třída těsnosti: A
  • Povrchová úprava: bez povrchové úpravy
  • Otvor: bez otvoru
  • Výztuhy: A, B > 1300mm
PRAH - schema

* Povinně zadávané parametry

Metoda zadávání odskočení

Poptávka PRAH:


Rozměr A (mm): Rozměr B (mm): Rozměr A1 (mm):
Rozměr B1 (mm): Rozměr L (mm): Rozměr hA (mm):
Rozměr hB (mm):


Vygenerovaný kód: Množství (ks):